岩手県八幡平市安比高原/450万円
☆ワンルームタイプ物件!!☆
|
|
|
| 問合せNo | |||
|---|---|---|---|
| 取引種目 | 売買建物 | 取引様態 | 仲介 |
| コメント | ☆ワンルームタイプ物件!!☆ | ||
| 所在地 | 岩手県八幡平市安比高原 | ||
| 価格 | 450万円 | ||
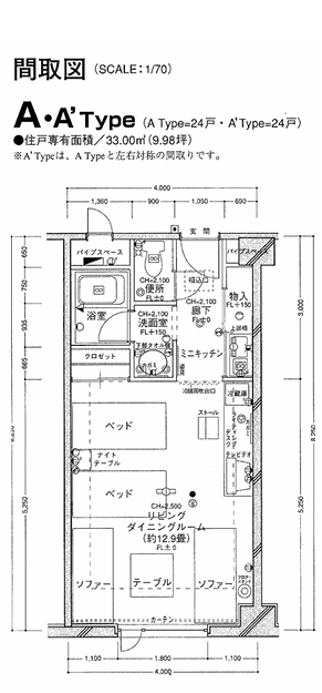
| 間取り | 1LDK | ||
| 交通 | JR花輪線「安比高原」駅からエリアシャトルバス | ||
| 土地面積 | 4484.60㎡ | 他、私道面積 | |
|---|---|---|---|
| 建物構造 | 鉄筋コンクリート造7階建 | 建物面積 | 758.48㎡ |
| 間取内訳 | 1LDK/LDK.12.9帖 洋.7.2帖 | ||
| 接道状況 | 北西側幅員約10m | ||
| 築年月日 | 平成9年11月 | 現況 | 賃貸中 |
| 引渡し時期 | 所有権移転時 | 駐車場 | 有り |
| 土地権利 | 所有権 | 地目 | 宅地 |
| 都市計画 | 都市計画外 | 用途地域 | 用途指定のない地域 |
| 建ペイ率(%) | 容積率(%) | ||
| 学区(小) | 学区(中) | ||
| ガス | トイレ | 水洗 | |
| 備考 | ※住戸専有面積/33.00㎡(9.98坪) ※年間管理費¥465,570(税込)特約負担額¥100,485(税込)修繕維持積立金¥50,400(税込) ※本物件は㈱岩手ホテルアンドリゾートと貸借契約をしております※詳細はお問い合わせください。 |
||
八代産業株式会社
青森県八戸市内丸1丁目6番4号(JR本八戸駅構内)
宅地建物取引業免許 青森県知事(12)第1735号
賃貸住宅管理業者登録
国土交通大臣(02)第000076号
FAX:0178-45-1202 info@8463.co.jp
この物件へのお問い合わせ
詳しい資料をFAX・Eメール・郵送でお送り致します。お気軽にお問い合わせください。




