【07550】青森県八戸市大字上徒士町/朝日プラザ長根公園 907/3.5万円
◎中心商店街に間近
朝日プラザ長根公園 907
| 種別 | マンション |
|---|---|
| 賃料 | 3.5万円 |
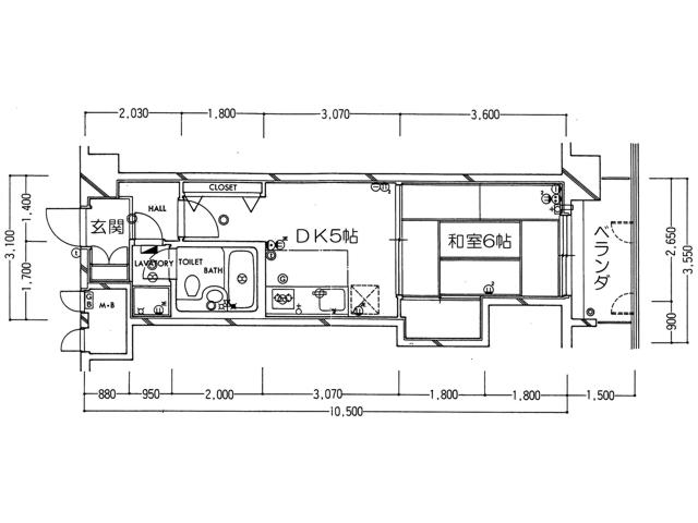
| 間取り | 1DK(DK5 和6) |
| 所在地 | 青森県八戸市大字上徒士町 |
| 取引態様 | 仲介 |
【水洗トイレ】有り【エアコン】無し【暖房機】無し【物置】無し【給湯器】ガス給湯器・2箇所【ガス】都市ガス【ペット不可】(ペットの飼育・持込みは出来ません。)
| 交通 | JR八戸線本八戸駅まで徒歩22分 バスで7分 新荒町バス停まで徒歩2分 | 管理費 | |
|---|---|---|---|
| 敷金 | 70,000円 | 礼金 | 0円 |
| 共益費 | 0円 | 仲介料 | 38,500円 |
| その他月額費用 | |||
| 賃貸保証料内容 | 個人契約の場合は連帯保証人の他に保証会社と保証委託契約(別途保証料必要)をしていただきます。 | ||
| 初期費用等 | 更新料等 | 更新事務手数料9,625円 | |
| 入退日 | 即入居可能 | 借家人賠償責任保険 | 借家人賠償責任保険要加入 |
| 契約 | 2年契約(更新可) | 築年月 | 1991/ 4(35年) |
| 専有面積 | 32.55㎡ | 構造 | 鉄骨鉄筋コンクリート造10階建 9階部分 |
| 学区(小) | 八戸市立長者小学校 | 学区(中) | 八戸市立長者中学校 |
| ペット | 不可 ペットの飼育・持込みは出来ません。 | ||
| 駐車場 | 駐車場はありません。 | ||
| 備考 | ◎中心商店街に間近 ◎中心商店街に間近 ◎オートロック、エレベーターあり |
||

-
- マックスバリュ八戸上組店 約250m
- ユニバース根城店 約900m
- セブンイレブン八戸大杉平店 約550m
- 八戸市立長者中学校 約2000m
- 八戸市立長者小学校 約850m
- 八戸市役所 約1150m
八代産業株式会社
青森県八戸市内丸1丁目6番4号(JR本八戸駅構内)
宅地建物取引業免許 青森県知事(12)第1735号
賃貸住宅管理業者登録
国土交通大臣(02)第000076号
FAX:0178-45-1202 info@8463.co.jp
この物件へのお問い合わせ
詳しい資料をFAX・Eメール・郵送でお送り致します。お気軽にお問い合わせください。











